huschka_architekten huschka_architekten
MENU

Zurück

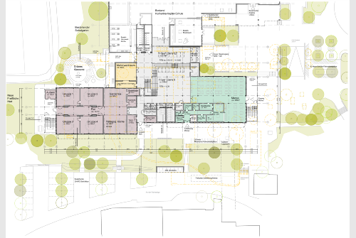
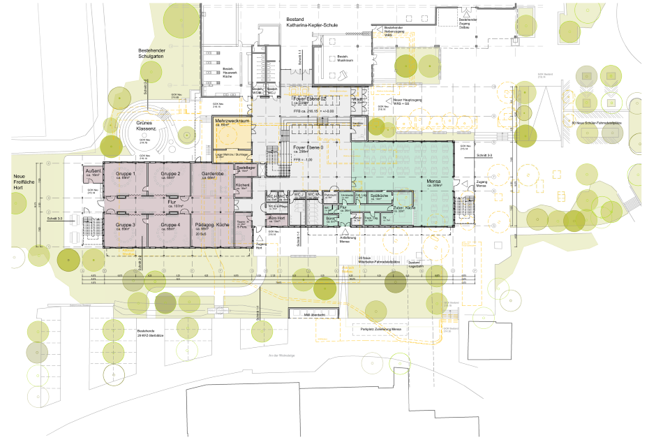
Erweiterungsbau einer 3-zügigen Grundschule mit Hort und Mensa

Erweiterungsbau einer 3-zügigen Grundschule mit Hort und Mensa

Kategorie

Zurück

Bitte warten!